fr / en
Scroll ——————————
gallieni cover

GALLIENI

Type
Appartement
Lieu
Courbevoie
Surface
50 m²
Date
Juin 2024

Situé avenue Gallieni à Courbevoie, dans un quartier paisible à l'architecture haussmannienne, cet appartement incarne la rencontre entre héritage et modernité.

Le charme de l'ancien, avec ses moulures, rosaces et belles hauteurs sous plafond, a été préservé puis réveillé par des touches contemporaines.

Les agencements sur mesure et le mobilier créent un équilibre subtil entre raffinement classique et fonctionnalité actuelle.

Un lieu pensé pour la vie d'aujourd'hui, ancré dans la beauté d'hier.

Images du projet
Images du chantier
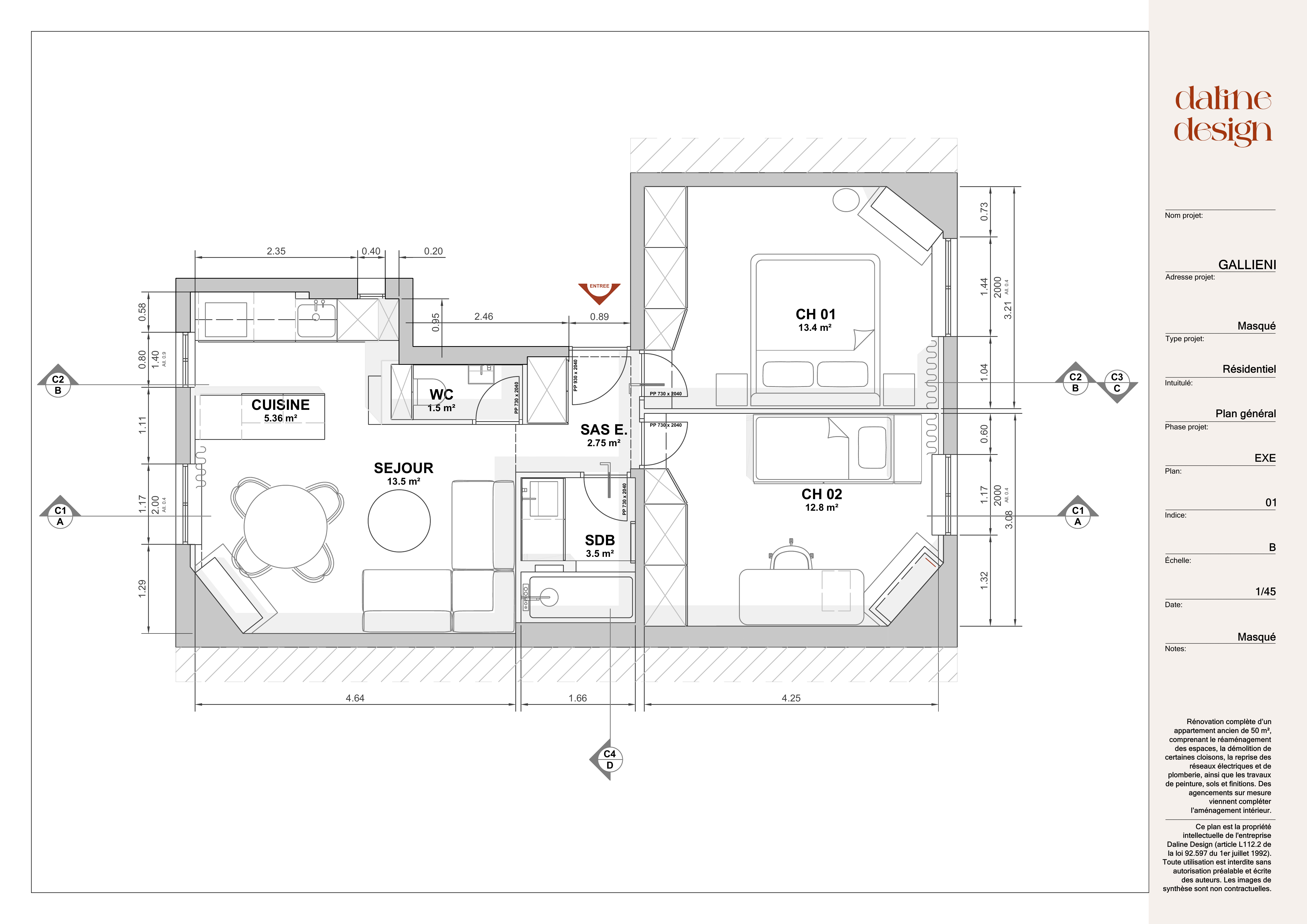
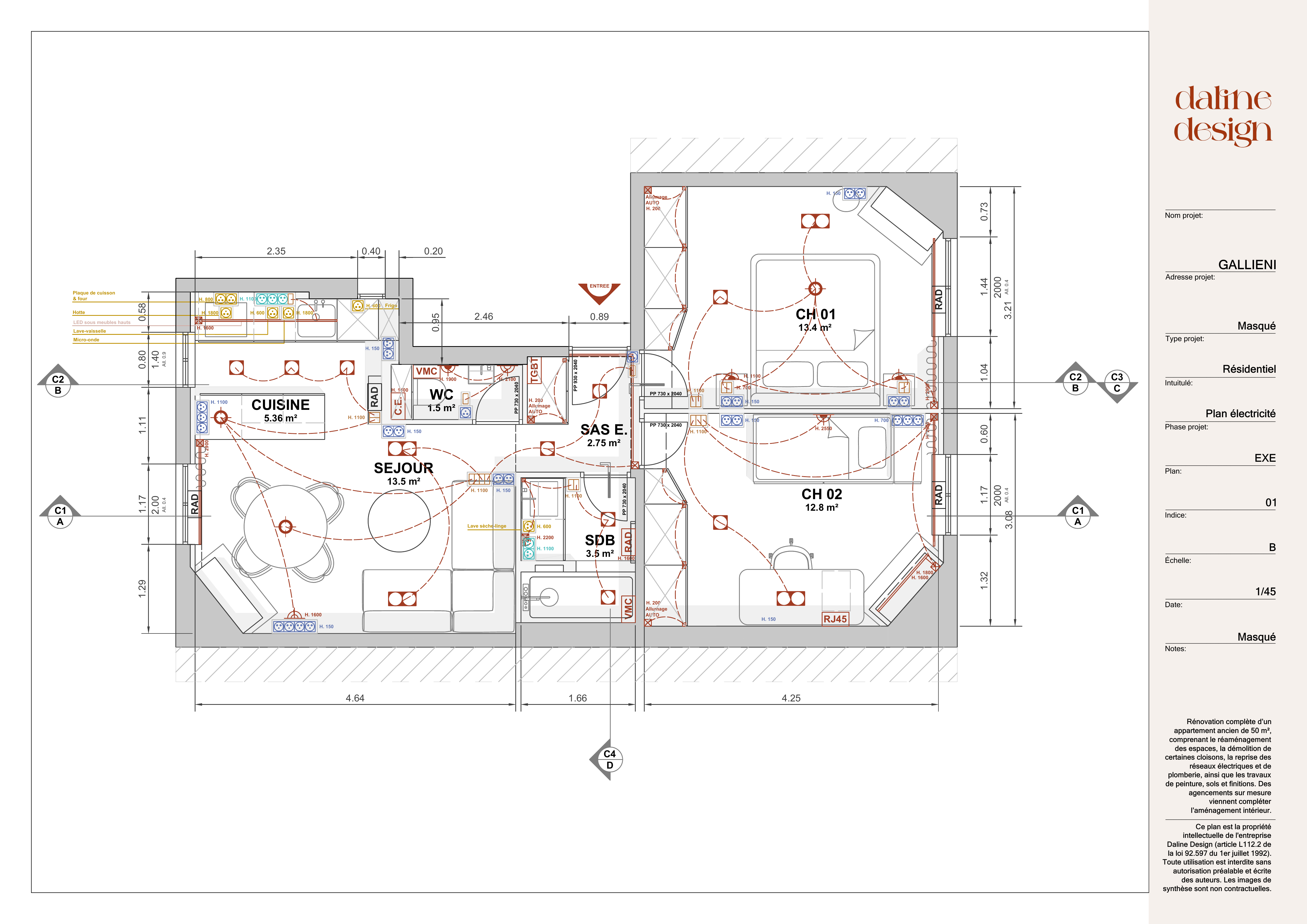
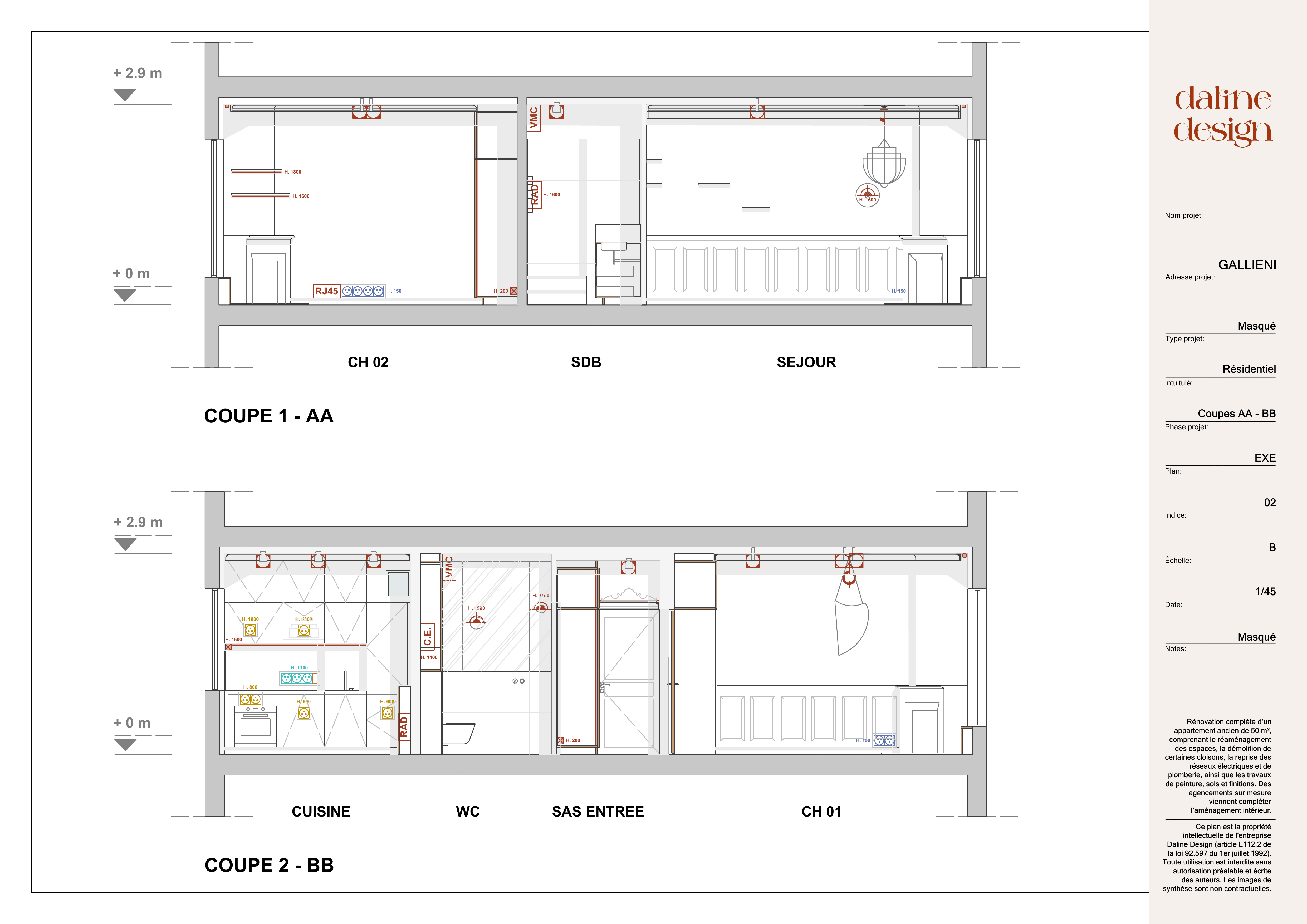
Plans techniques

GALLIENI

Type
Apartment
Location
Courbevoie
Area
50 m²
Date
June 2024

Located on Avenue Gallieni in Courbevoie, in a quiet neighborhood with Haussmann-style architecture, this apartment embodies the meeting of heritage and modernity.

The charm of the past, with its moldings, ceiling roses, and generous ceiling heights, has been preserved and gently reawakened through contemporary touches.

Custom-built layouts and carefully selected furniture create a subtle balance between classical refinement and modern functionality.

A space designed for today's life, rooted in the beauty of yesterday.

Project Images
Contruction Images
Technical Drawings
Images du projet
Images du chantier
Plans techniques
Project Images
Contruction Images
Technical Drawings